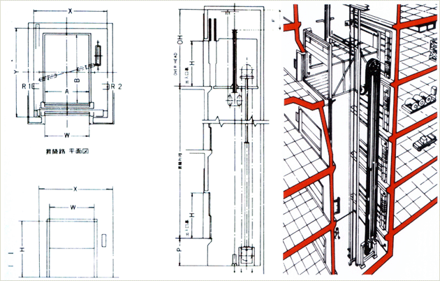
CAGE높이의 CYLINDER를 승각로 내부의 측벽에 따라 고정시킨 유압식 FIFTER CYLINDER PLUNGER(가동부) 선단에 WIRE
SHEAVE를 설치하고 WIRE를 감아 CAGE를 움직이는 기구로 CAGE는 PLUNGER의 STROKE에 2배 행정을 승강한다.
CYLINDER가 건물의 측벽에 따라 있으므로 LIFTER는 진동에 대해 건물과 동일한 흔들립을 하기 떄문에 내진형 ELEVATOR라고
말한다. 또 건물의 반력은 총중량의 1/4이 된다. 이러한 진동에 강하고 경음구조 B/D에 최적인 LIFTER이다. CYLINDER 매설용의 HOLE을 뚫을 필요가 없고 승강로내의 어느위치라도 자유롭게 설치 할 수 있는 구조상의 이점이 있다.

형식
적재량
(㎏)
속도
(M/M)
전동기
(㎾)
출입구폭
(W)
출입구높이
(H)
CAR규격(M/M)
승강로규격(M/M)
승강
행정
(M)
반력(㎏)
A
B
X
Y
P
F
OH
R1
R2
R3
R4
DAT1-1518-08
800
20
11
1500
2100
1500
1800
2300
2300
1200
800
3500
30
2000
50
3100
6500
30 15
DAT1-1820-10
1000
20
15
1800
2100
1800
2000
2600
2500
1200
800
3500
30
3000
700
4000
7500
30 22
DAT1-2125-15
1500
20
18.5
2100
2100
2100
2500
2900
3000
1200
800
3500
30
4000
800
4500
8500
30 30
DAT1-2327-20
2000
20
22
2300
2100
2300
2700
3100
3200
1200
800
3500
30
4200
1000
5800
10600
30 37
DAT1-2530-25
2500
20
30
2500
2100
2500
3000
3400
3500
1300
800
4000
30
4800
1000
7500
12800
30 37
DAT1-2733-30
3000
20
37
2700
2100
2700
3300
2600
3900
1300
800
4000
30
5400
1200
10500
15900
30 45
DAT1-3055-50 5000 10 45 3000 2100 3000 3500 3900 4100 1500 800 4000 30 8000 1500 16500 20400
20 55