|
|
|
|
 |
|
 |
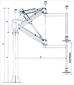
AIR LIFTER는 중량물 반송 장치 중에서도 구조가 매우 간단하고
안전하며, 작업환경이 협소한 장소 또는 천정 설치용으로도
널리 사용할 수 있습니다.
간단한 조작(상승 하강 SWITCH)으로 작동 범위내에서는 수직,
수평, 회전 등의 다양한 이동이 가능합니다. 또한 고장이 거의
없으므로 유지비가 적게 들고 어떠한 환경이나 작업조건
변화에도 손쉽게 적용시킬 수 있습니다.
특수공압회로로 구성되어 각 배관계통의 파손이나 AIR 공급의 갑작스런
중단에도 안전이 보장되어 있습니다. 즉 AIR공급이
중단되어도 현재 위치에서 정지하며 작업자에 의해 안전한 위치로 내릴
수 있습니다.
여러종류의 ATTACHMENT를 각종 작업에 맞춰서 교환시킬 수
있으며 부녀자 노약자도 쉽게 조작할 수 있습니다. |
|
|
|
 |
 |
|
 |
| 스리트
라인적용(전기식 상하좌우 동작형) |
|
진공지그장치 |
| |
|
 |
|
 |
| 고무원료
이송 |
|
완제품
이송 |
|
|
|
|
|
|
|
|